Beckumerstraat 173-3 te Boekelo
Beckumerstraat 173-3 te Boekelo
Vraagprijs € 395.000,-- kk
Algemeen
Welkom in dit bijzondere object: Juridisch een appartementsrecht, maar
qua uitstraling, gebruik en woonbeleving een volwaardig woonhuis met een
eigen entree en geen onder- en/of bovenburen.
Een pand met historie: Waar ooit café Breukers het dorpsleven samenbracht
en later de gelijknamige slijterij was gevestigd, is nu een bijzonder woonobject
gerealiseerd. Een particuliere belegger heeft dit karakteristieke gebouw
met respect voor het verleden volledig herontwikkeld en gesplitst in drie
zelfstandige en moderne wooneenheden.
Elke woning beschikt over een eigen identiteit en specifieke kenmerken,
terwijl comfort en energiezuinigheid centraal staan. Het laatste vertaald
zich naar het uitstekende energielabel A++.
Met een oorsprong in 1929 en een complete verbouwing in 2024/2025 biedt
dit object het beste van twee werelden: karakter én eigentijds wooncomfort.
Beckumerstraat 173-3 kenmerkt zich door:
- Woonkamer met een oppervlakte van maar liefst 46 m²;
- Twee slaapkamers en badkamer op de verdieping;
- Riant (± 22 m²) dakterras.
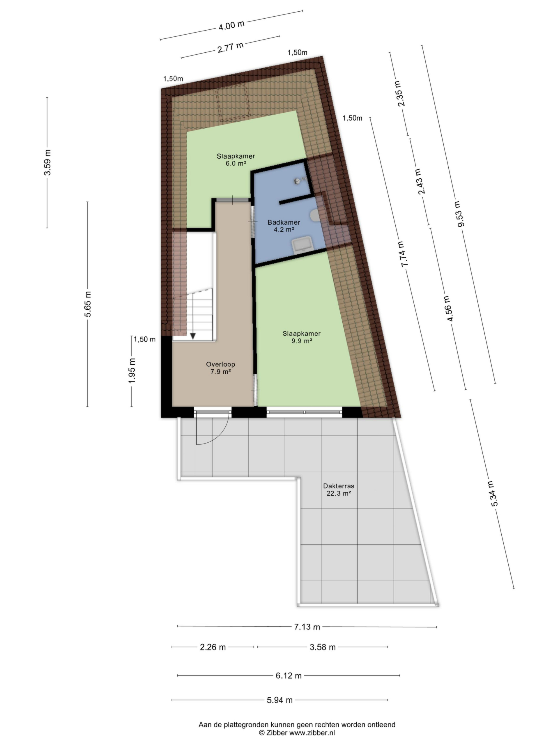
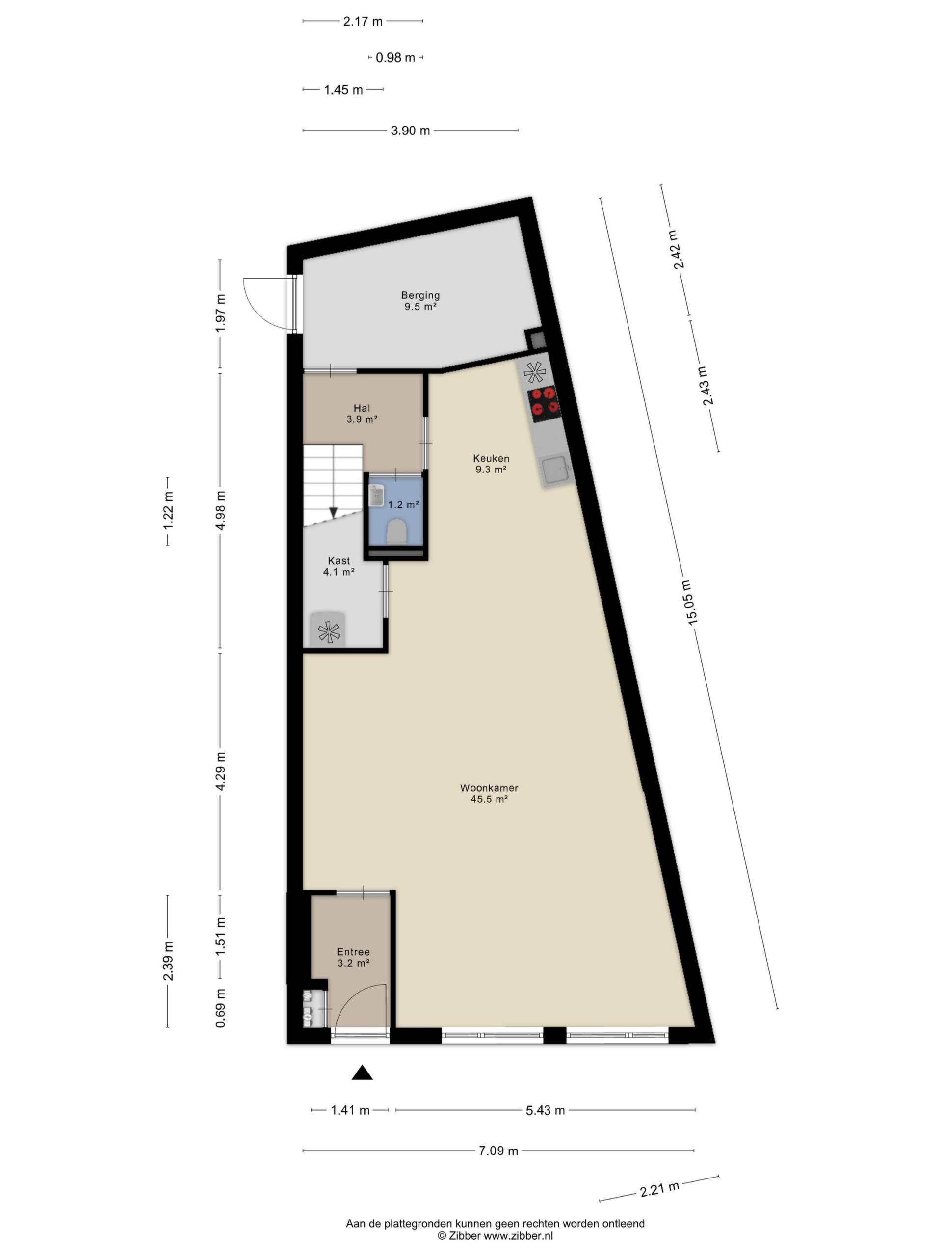
Indeling
Begane grond:
- Entree, hal met groepenkast;
- Woonkamer (± 46 m²) en open keuken v.v. inductie-kookplaat, afzuiging
en koelkast;
- Trapkast met opstelling warmtepomp;
- Inpandige hal met doorgang naar berging (ook toegankelijk vanaf achterzijde),
toilet v.v. wandcloset en fonteintje.
Eerste verdieping:
- Royale overloop met deur naar riant dakterras (± 22 m²);
- Twee slaapkamer (± 10 - en 6 m²) de kleinste met dakraam;
- Badkamer (± 4 m²) v.v. douche, wastafel en wandcloset.
Bijzonderheden
- Woonoppervlakte ± 111 m² (incl. ± 10 m² inpandige berging);
- Inhoud ± 393 m³ (berekend a.d.h.v. meetinstructie voor een woonhuis);
- Begane grond v.v. vloerverwarming;
- Ventilatie retour warmtepomp (eigendom);
- Energielabel A++;
- Compacte voortuin.
Vereniging van eigenaren:
Doordat in het gebouw hier en daar (enkele meters) sprake is van onder-
en bovenbouw is gekozen voor de oprichting van een Vereniging van Eigenaren.
Daardoor volgde automatisch de splitsing in appartementsrechten en het
opstellen van een Meer Jaren Onderhoudsplanning (MJOP). O.a. het buitenonderhoud
en de opstalverzekering voor het hele gebouw komen daarmee voor rekening
van de drie (toekomstige) eigenaren van het gebouw, uiteraard naar rato
van het aandeel. Het is aan de drie toekomstige eigenaren om - binnen de
wettelijke kaders - de maandelijks verschuldigde bijdrage aan de "VvE Breukers"
vast te stellen.